weitere Informationen zur Feuerwehr Obereisesheim – Sanierung und Erweiterung
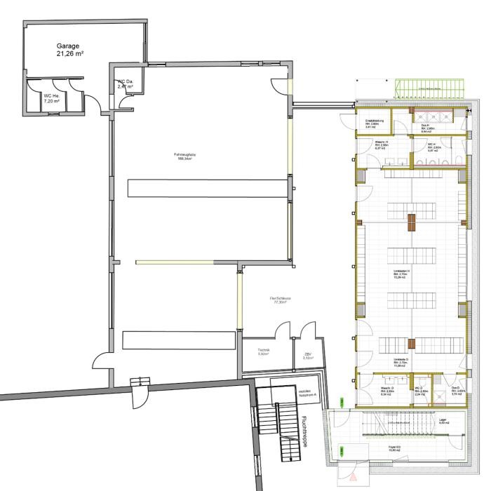
Das an die Verwaltungsstelle Obereisesheim angegliederte Feuerwehrgebäude muss aus verschiedenen Gründen angepasst werden. Zum einen wird Platz für die Anschaffung eines neuen Feuerwehrfahrzeuges benötigt, was zur Folge hat, dass der derzeitige Besprechungsraum verloren geht. Aus diesem Grund ist ein neuer Schulungs-/Versammlungsraum zu schaffen. Des Weiteren müssen bisher fehlende Umkleiden geschaffen werden, da die Spinde derzeit hinter den Einsatzfahrzeugen in der Fahrzeughalle stehen, was eine Gefahr für die Mitglieder der Feuerwehr darstellt. Zudem sind Sanitärräume (Duschen) und zusätzliche WCs herzustellen.
Im Rahmen einer Machbarkeitsstudie wurde der Platzbedarf der Räumlichkeiten ermittelt und geprüft. Die Studie kam zu dem Ergebnis, dass ein zusätzlicher Flächenbedarf auf dem dahinterliegenden Grundstück der Hauptstraße 32 gedeckt werden kann.
Die Untersuchung des Bestands zeigt jedoch auch, dass für die Erweiterung verschiedene bauliche Anpassungen im Bestand erforderlich werden:
- Durch die Anschaffung eines weiteren Einsatzfahrzeuges werden die zwei bestehenden Stellplätze um einen Stellplatz erweitert.
- Der bestehende Boden im Gerätehaus entspricht nicht den heutigen Anforderungen an die Rutschfestigkeit und muss somit erneuert werden.
- Die Fahrzeughalle wird durch Durchbrüche an der Rückwand erweitert. Durch die großen Eingriffe in die Statik müssen diese Lasten durch weitere Fundamente abgefangen werden.
Zeitschiene:
Bedingt durch die schnelle Modulbauweise ist derzeit folgende Terminschiene angesetzt:
- Baubeginn: 10.07.2025
- Fertigstellung der Module und des Treppenhauses November 2025
- Fertigstellung der Erweiterung und Sanierung der Feuerwehr Obereisesheim ist im April 2026 geplant
Perspektive:
Nach Fertigstellung der Arbeiten für die Feuerwehr Obereisesheim wird die temporäre Gerüsttreppe der Verwaltungsstelle abgerissen und eine neue Fluchttreppe errichtet.


