weitere Informationen zur Generalsanierung der Hermann-Greiner-Realschule
Die Hermann-Greiner-Realschule ist in der Vergangenheit mit den Veränderungen der Schülerzahlen, der schulischen Aufgaben sowie der pädagogischen Inhalte baulich gewachsen.
Der Schulkomplex besteht aus mehreren Gebäudeteilen. Der älteste Teil stammt aus dem Jahr 1949. Die letzte bauliche Erweiterung erfolgte 2004 in Form einer Dachaufstockung. Zuvor entstanden Erweiterungen in den 1960er-, 1980er- und 1990er-Jahren, in deren Zuge die Schule unter anderem eine Tiefgarage erhielt. Nach diesen Ausbaumaßnahmen stehen auf dem Grundstück nur noch sehr begrenzt Flächenreserven zur Verfügung.
Im Jahr 2012 wurde eine umfassende Strukturanalyse für den Gebäudekomplex durchgeführt. Ziel war es, Entwicklungsmöglichkeiten für Schule und Standort aufzuzeigen. Dabei wurde ein mehrgleisiger Ansatz verfolgt: Einerseits wurden schulische Rahmenbedingungen – wie die Entwicklung der Schülerzahlen, pädagogische Inhalte sowie die aktuelle und zukünftige Ausrichtung der Schule – in Workshops gemeinsam mit der Schulleitung erarbeitet und ausgewertet. Andererseits erfolgte eine detaillierte räumliche Bestandsaufnahme, bei der sowohl die funktionale Zuordnung der Räume als auch deren bauliche Eignung überprüft wurde.
Die über Jahrzehnte gewachsene Struktur stellt die Planer vor große Herausforderungen. Insbesondere die Umsetzung von Sanierung, Umbau und Erweiterung im laufenden Schulbetrieb verlangt von Schülerinnen und Schülern, Lehrkräften sowie allen Beteiligten ein hohes Maß an Flexibilität und gegenseitiger Rücksichtnahme.
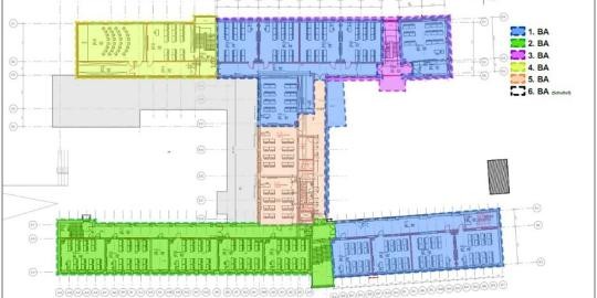
Die Generalsanierung wurde in fünf Bauabschnitte unterteilt.
Bauabschnitt (2018–2019)
Im Januar 2018 startete der erste Bauabschnitt im hinteren Gebäude entlang der Damaschkestraße. In den oberen Stockwerken wurden die Klassenzimmer saniert, im Erdgeschoss entstand eine neue Lehrküche. Am Gebäudeende wurde zudem ein neues Treppenhaus eingebaut.
Im hinteren Gebäude entlang der Steinachstraße wurde der bislang aufgeständerte Bereich unterbaut, um zusätzliche Flächen zu schaffen. Dort wurde eine neue Toilettenanlage untergebracht.
Im September 2019 wurde der 1. Bauabschnitt abgeschlossen und der Schule zur Nutzung übergeben.
Bauabschnitt (2021–2022)
Im August 2021 begann der 2. Bauabschnitt. Im vorderen Gebäude entlang der Damaschkestraße wurden weitere Klassenzimmer sowie die Werkräume im Untergeschoss saniert.
Bauabschnitt (2023–2024)
Der 3. Bauabschnitt startete im April 2023. Mit der Baumaßnahme im 2. Obergeschoss wurde der Umbau des nördlichen Gebäudeteils an der Steinachstraße abgeschlossen. Dort entstanden drei naturwissenschaftliche Fachunterrichts- und Vorbereitungsräume.
Das als abgesetztes Dachgeschoss ausgebildete Stockwerk wurde baulich so umgestaltet, dass gemeinsam mit dem Neubau des Mensagebäudes an der Ecke Steinachstraße und Gottlob-Banzhaf-Straße künftig eine einheitliche Fassadengestaltung entlang der Steinachstraße entsteht.
Hofseitig wurde ein Erkeranbau zurückgebaut, um im nördlichen Schulhof ein ruhigeres Gesamtbild im Zusammenspiel der aus drei unterschiedlichen Bauzeiten stammenden Baukörper zu erreichen. Die endgültige Fassadenfertigstellung wurde in den 4. Bauabschnitt verschoben, um Neubau und Bestandsgebäude in einem Zug fertigzustellen.
Der 3. Bauabschnitt wurde im Mai 2024 abgeschlossen.
Unmittelbar im Anschluss erfolgte die Sanierung der Tiefgaragendecke im nördlichen Schulhof. Aufgrund von Undichtigkeiten wurde die Deckenkonstruktion bis auf die Rohdecke zurückgebaut, neu abgedichtet und wieder aufgebaut. In diesem Zuge wurde der Schulhof neugestaltet. Ein neuer Pflasterbelag, zusätzliche Sitzmöglichkeiten sowie weitere Baumpflanzungen werten den hinteren Schulhof deutlich auf und verbessern die Verschattung. Im September 2024 wurde der Bereich wieder zur Nutzung freigegeben.
Bauabschnitt (2024–2026)
Der 4. Bauabschnitt begann im August 2024 mit dem Abbruch des Gebäudeteils an der Ecke Gottlob-Banzhaf-Straße und Steinachstraße. Dieser wurde bis zum Treppenhaus vollständig zurückgebaut und neu errichtet.
Der Rohbau wurde im April 2025 fertiggestellt. Ab Mai 2025 folgten Fassadenarbeiten und Innenausbau.
Mit der Fertigstellung im April 2026 stehen im 2. Obergeschoss zwei weitere naturwissenschaftliche Fachräume zur Verfügung. Damit ist die Erweiterung dieses Fachbereichs abgeschlossen.
Im 1. Obergeschoss werden zwei Räume für den Musikfachbereich eingerichtet. Im Erdgeschoss nimmt die neue, modern gestaltete Mensa ihren Betrieb auf. Sie bietet Platz für 120 Personen. Angrenzend befinden sich zwei Aufenthaltsräume, die sich zu einem großen Veranstaltungsraum zusammenschalten lassen.
Darüber hinaus wurde ein eingeschossiger Eingangsbereich mit neuem Foyer am Mittelbau errichtet. Aufgrund zahlreicher Schnittstellen zwischen Bestand und Neubau erfolgt dessen endgültige Fertigstellung jedoch erst im 5. Bauabschnitt.
Im Untergeschoss entstanden drei Räume für den Fachbereich IT sowie ein großer Technikraum.
Bauabschnitt (2026–2027)
Der Beginn des 5. und letzten Bauabschnitts ist für Juni 2026 vorgesehen. In diesem Abschnitt wird der Mittelbau vom Untergeschoss bis in das 2. Obergeschoss umfassend saniert.
Im 2. Obergeschoss wird im Lehrerzimmer eine zusätzliche Ebene eingezogen, um die Fläche zu erweitern und die Aufenthaltsqualität zu verbessern.
Im 1. Obergeschoss werden die beiden noch verbliebenen Klassenzimmer saniert und modernisiert.
Im Erdgeschoss wird die bestehende Toilettenanlage zurückgebaut und das Foyer vergrößert. Zusätzlich entsteht ein Bereich mit Computerarbeitsplätzen für Schülerinnen und Schüler sowie ein weiterer Aufenthaltsraum.
Im Untergeschoss werden alte Wasser- und Abwasserleitungen zurückgebaut. Diese versorgten ursprünglich das ehemalige Lehrschwimmbecken mit Duschen und WCs. Aufgrund altersbedingter Schäden und Undichtigkeiten kam es in den vergangenen Jahren wiederholt zu Wasserschäden, die nun nachhaltig behoben werden.
Zur Sicherstellung der Barrierefreiheit wird außerdem ein Aufzug eingebaut.
Direkt im Anschluss an die Gebäudesanierung wird der vordere Schulhof neugestaltet.
Abschluss der Generalsanierung
Die vollständige Fertigstellung der Generalsanierung ist nach aktuellem Stand für September 2027 vorgesehen.
Mit dem Abschluss der Generalsanierung erhält die Stadt Neckarsulm eine funktional, gestalterisch und technisch zukunftsfähige Schule, die den Anforderungen moderner Pädagogik langfristig gerecht wird
-min.png?f=%2Fsite%2FNeckarsulm-2022%2Fget%2Fparams_E-1256701609%2F1161557%2FBalduin_03%2520%25281%2529-min.png&w=700&h=1000)





